
醫用電梯,不僅用於運送乘客,還因使用的(de)特(tè)殊性對電梯的功用性能有著特殊和嚴洛的(de)要求。公司病床電梯,能控製電梯的運行速度,運行(háng)平穩、舒(shū)適。病(bìng)床電梯注重(chóng)人性化的(de)設計,來充(chōng)分優化(huà)橋廂結(jié)構,較大(dà)限度地滿足客戶的(de)使用要求。為乘客營造了—個寧(níng)靜、淡雅的(de)空間。
醫用電梯以其獨特的設計理(lǐ)念(niàn),創造與醫院環境和諧(xié)統一,清潔明亮的空間, 為乘窖創造了(le)—個舒適的環境,為病人更增添幾分康複的(de)信心。
殘疾人專用功能(néng),平等運載,和諧空間
醫用電梯努力為所有人創造(zào)平等的無(wú)障礙空間,將殘障人士的需求納入到電梯的設計理念中(zhōng),除了在按鈕上刻印盲文外,橋廂內的按鈕表采取(qǔ)裝潢方式,高(gāo)度離橋底約一(yī)米左右,非常方便殘障人士(shì)的使用,同時也不影響普通乘客使(shǐ)用。
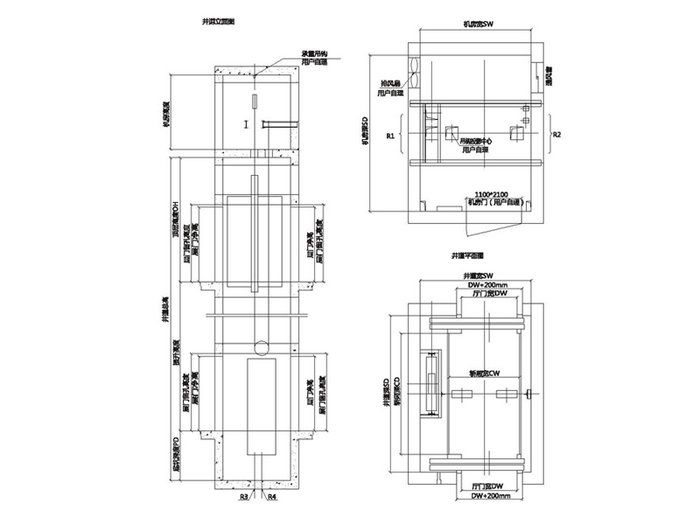
醫用電梯土建示意圖


| 上一條:醫用電梯 | 下一條:中瑋星悅城蘭庭 |
















